




Pièces
3 pièces
Surface
62 m²
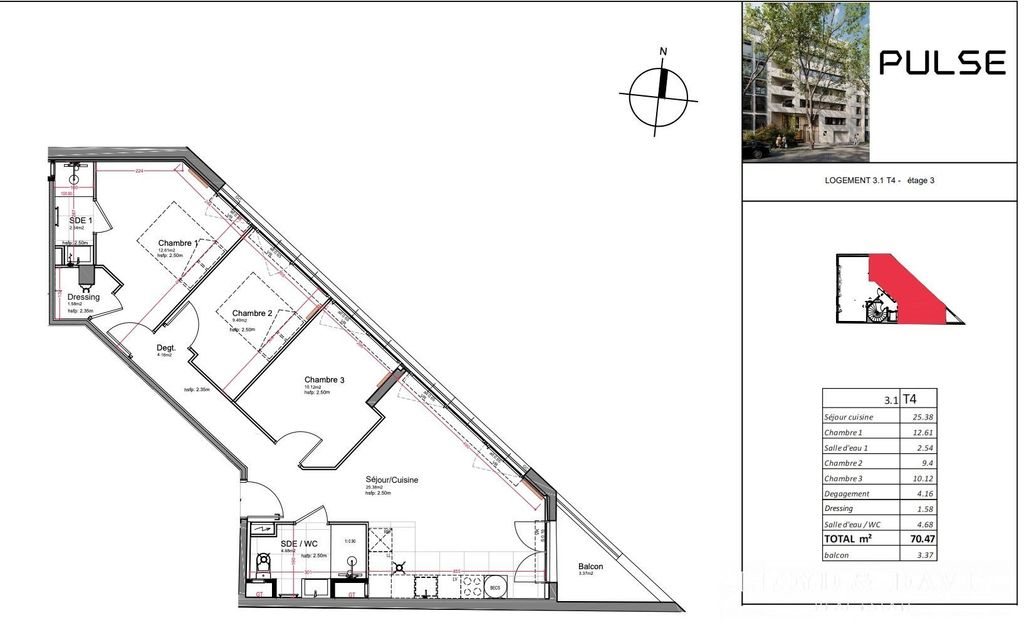
Boulogne-Billancourt Appartement haut de gamme dans résidence intimiste Au sein d'une résidence contemporaine élégante à Boulogne-Billancourt, découvrez un appartement aux prestations soignées, offrant confort, luminosité et volumes optimisés. Emplacement recherché, proche des commerces, des transports et des établissements scolaires. Idéal pour résidence principale haut de gamme ou acquisition patrimoniale. Présentation sur demande Dossier disponible. Honoraires à la charge du vendeur. Dans une copropriété de 11 lots. Aucune procédure n'est en cours. Non soumis au Dpe. Les informations sur les risques auxquels ce bien est exposé sont disponibles sur le site Géorisques : . Votre conseiller Lloyd & Davis : Escoty MOUQUET Agent commercial (Entreprise individuelle) Rsac 943 466 540 Versailles Rcp Rk Markel
Source
Luxury estate
Publié le
5 février 2026
Vue pour la dernière fois
il y a 19 heures