
Pièces
3 pièces
Chambres
2 chambres
Salles de bain
1
Surface
73 m²
Ascenseur
Oui
Terrasse
Oui
Balcon
Oui
Cave
Oui
Consommation énergétique
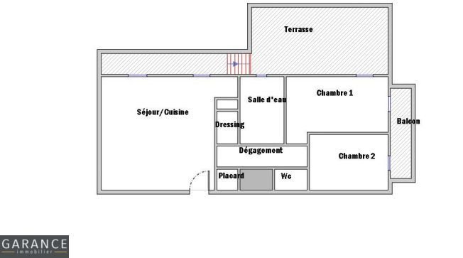
Vente appartement 3 pièces Paris Bel-Air Sud 73m² : Superbe appartement 3 pièces à Paris (75012) - Terrasse - Lumineux - Vue dégagée. A 50m de Michel Bizot, nous vous proposons un superbe appartement au 9ème étage d'une copropriété bien entretenue et sécurisée par un gardien. Entièrement refait à neuf, il comprend un salon avec cuisine ouverte donnant sur une belle Terrasse de 35m2, deux chambres donnant sur un Balcon, une salle d'eau, un Wc et un dressing. Orienté Ouest, l'appartement est particulièrement Lumineux et ne présente aucun vis-à-vis. L'environnement est Calme et la terrasse permet de profiter du soleil toute la journée. Nombreux rangements disponibles et local vélo à disposition dans l'immeuble . Une cave complète l'appartement et un box est possible en sus.. - Garance Immobilier est une agence immobilière située à Paris 75014
Source
Luxury estate
Publié le
10 décembre 2025
Vue pour la dernière fois
il y a 5 heures