




Pièces
4 pièces
Chambres
4 chambres
Surface
149 m²
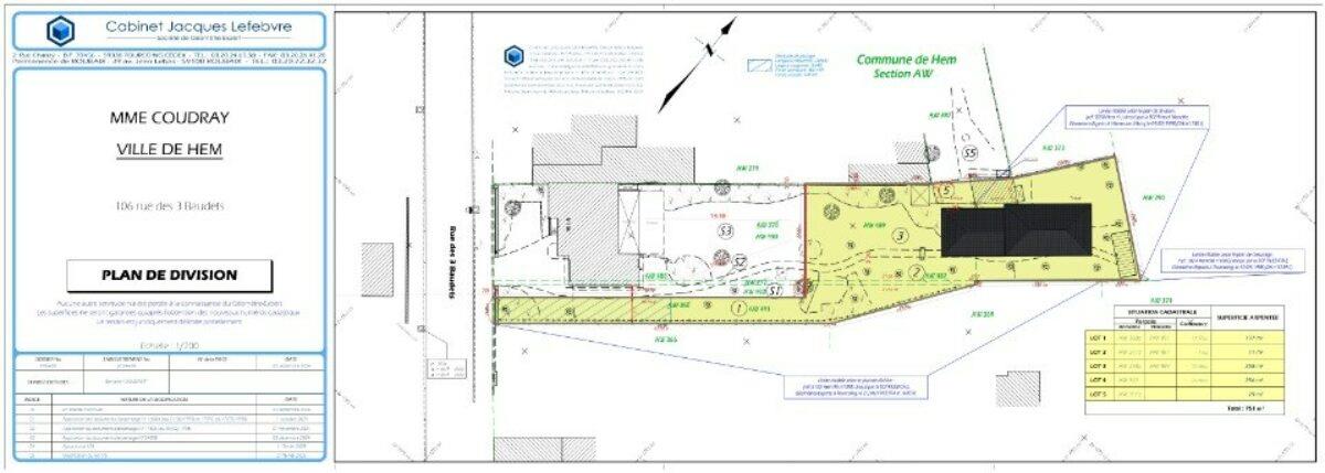
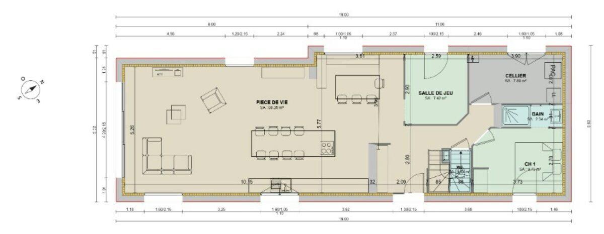
Maison contemporaine de 149 m2 habitables à bâtir sur la commune de Hem répondant à la dernière norme thermique et environnementale Re 2020.Cette maison est à bâtir dans un quartier calme et familiale, très rare sur le secteur le terrain de 751 m2 est à viabiliser et se trouve en second rang.Proche de la Belgique et à 11 km de Lille, nous vous proposons cette maison avec :Au rez-de-chaussée, elle est équipée d'une pièce de vie de 60 m2,un hall lumineux avec Wc et placard, une salle de jeu, un grand cellier et une belle chambre suivie d'une pièce d'eau...A l'étage, vous trouverez deux chambres enfants, une chambre parentale avec un dressing spacieux, un Wc indépendant et une grande salle de bain .Le montant terrain + maison hors frais annexes et de notaire 530 000 Euros.Contactez Sébastien Raviart au O6 pour plus de renseignements sur la maison, sur les modalités de vente ou sur les démarches à suivre. Maisons France Confort Lille vous accompagne dans tous vos projets immobiliers et dans toutes vos démarches.
Source
Maisons-france-confort
Publié le
27 août 2025
Vue pour la dernière fois
il y a 15 heures