




Pièces
5 pièces
Chambres
4 chambres
Surface
111 m²
Terrasse
Oui
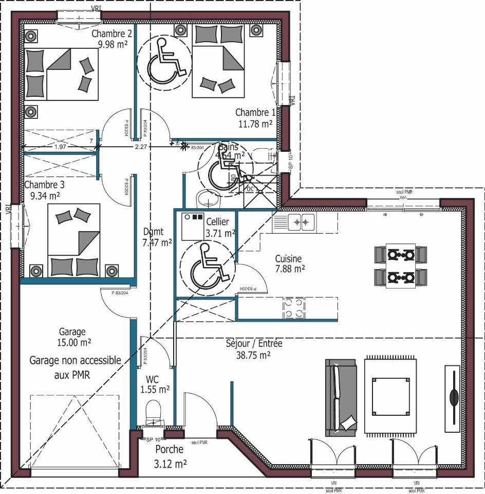
Cécile Pénicaut des maisons Mca vous propose d'adapter le modèle Aurore, sur ce joli terrain d'environ 572m², située sur la commune de Mées, dans un petit lotissement de 6 lots, aux portes de Dax, avec un accès direct à la quatre voies direction Bayonne / Mont de Marsan. ?Une maison aux lignes sobres dont l'entrée est marquée par un agréable porche. D'une superficie de 111m2, ce modèle offre un hall d'entrée avec cellier et Wc séparés, un beau séjour de plus de 40m2 tourné vers le jardin, et une grande cuisine fermée. L'espace nuit est quant à lui composé de 3 chambres avec placards, regroupés autour de la salle de bains. Elle dispose également d'une suite parentale à l'écart, avec sa propre salle d'eau. Vous serez séduits par ses volumes optimisés, son garage attenant et communiquant avec la cuisine et l'emplacement placard prévu dans chaque chambre.Ce projet peut-être modifié sur mesure, et il existe en différentes superficies, allant de 84m2 à 128m2, afin de s'adapter au mieux à votre mode de vieLe prix affiché comprend le terrain, les frais de notaire, les frais annexes (raccordements, bornage, asl), et cette maison livrée prête à décorer.Pour vous accompagner dans votre projet de construction personnalisé, contactez vite Cécile Pénicaut à l'agence Mca Saint Paul Lès Dax, afin qu'elle vous accompagne et vous guide dans les démarches ?️??
Source
Maisons-france-confort
Publié le
5 mars 2026
Vue pour la dernière fois
le 23/03/2026