




Pièces
7 pièces
Chambres
5 chambres
Surface
102 m²
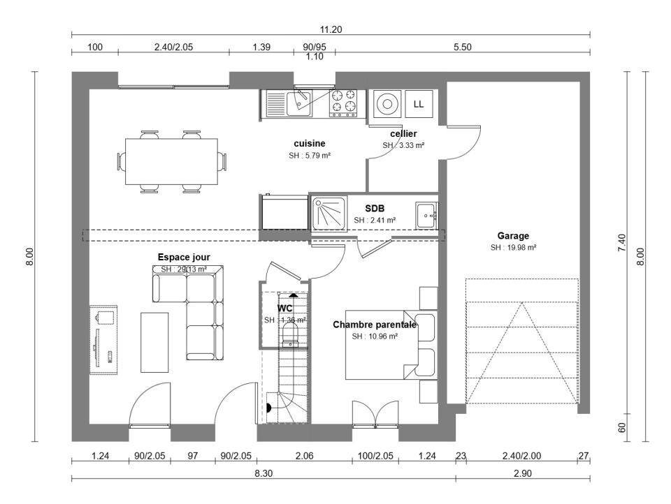
Saint-Manvieu-Norrey : maison T7 (102 m²) en venteIdéalement située - À Saint-Manvieu-Norrey (14740), maison neuve à vendre de 7 pièces, 2 niveaux, 102 m² de surface et 212 m² de terrain. Son intérieur dispose de cinq chambres, d'une cuisine et de deux salles de bains.Proche gares (Bretteville-Norrey, Saint-Germain-en-Laye Bel-Air-Fourqueux T13 et Audrieu), établissements scolaires, boulangerie, commerce et supermarché. Autoroute A84 et nationales N13 et N814 accessibles à 6 km. Caen à 9 km.Le prix de vente de cette maison de 7 pièces est de 219 000 €.Contactez Emilie Hue ( ) pour plus d'informations sur la maison. Maisons France Confort Bayeux vous accompagne dans toutes vos démarches et dans tous vos projets immobiliers. Annonce proposée par un Agent Commercial Partenaire.
Source
Maisons-france-confort
Publié le
24 février 2026
Vue pour la dernière fois
il y a 8 heures