




Pièces
5 pièces
Chambres
4 chambres
Surface
130 m²
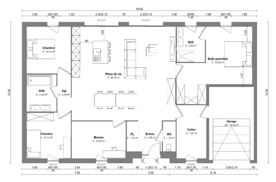
Maison de plain-pied de 130m2 avec garage à construire à Cuvillers.- Construction conforme à la norme Re2020 (basse consommation Dpe : A)- Mode de chauffage dernière génération via pompe à chaleur avec plancher chauffant- Plans sur mesures et modifiables à la demande.- Garanties et assurances obligatoires inclusesCette maison dispose de 4 chambres dont une suite parentale avec salle d'eau, d'une grande pièce de vie, d'une salle de bains, un cellier et garage.Son prix de vente est de 285 000 € frais de notaire inclus sur le terrain. Hors raccordements, hors branchements.Contactez Pauline Gomez (O6 ) pour toute information sur cette maison.Ensemble, construisons la maison qui vous ressemble !
Source
Maisons-france-confort
Publié le
7 mars 2026
Vue pour la dernière fois
le 23/03/2026