




Pièces
3 pièces
Chambres
1 chambre
Surface
60 m²
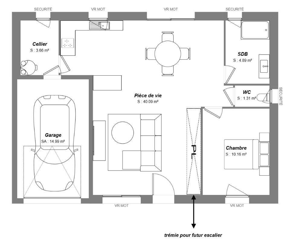
Maison lumineuse de plus de 60 m² offrant des espaces généreux et modulables, conçue pour privilégier confort et convivialité. Elle dispose d'un garage pratique et d'une structure évolutive avec combles aménageables, permettant d'agrandir et personnaliser les volumes selon vos besoins.Je reste disponible pour toutes demandes de renseignements, n'hésitez pas me : Stéphane Digneton : O6..
Source
Maisons-france-confort
Publié le
6 mars 2026
Vue pour la dernière fois
il y a 2 heures