
Pièces
4 pièces
Chambres
3 chambres
Salles de bain
2
Surface
115 m²
Balcon
Oui
Cave
Oui
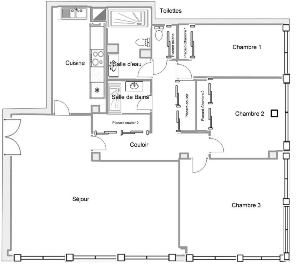
92100 Boulogne - Boulevard Jean-Jaures Proche quais de Seine, découvrez cet appartement spacieux de 115 m² (Loi Carrez) situé au 3ème étage, offrant une grande liberté d'aménagement. Il se compose d'une entrée, d'un double séjour lumineux grâce à de grandes baies vitrées, d'une cuisine indépendante entièrement équipée, de trois chambres confortables, de deux salles d'eau chacune avec WC. Profitez d'un balcon ensoleillé et d'une cave pour un espace de rangement supplémentaire. Situé à seulement 10 minutes à pied de la station Marcel Sembat (ligne 9), à proximité du Tram T2 (Issy les Moulineaux) et desservi par de nombreuses lignes de bus, cet appartement bénéficie d'un environnement urbain avec toutes les commodités à proximité immédiate : supermarchés, restaurants, commerces, écoles. Ne manquez pas l'opportunité de visiter ce bien exceptionnel! Renseignements 7j/7j: + 33 (0) 6 . Selon l’article L.561.5 du Code Monétaire et Financier, pour l’organisation de la visite, la présentation d’une pièce d’identité vous sera demandée.
Source
Montaigne
Publié le
28 octobre 2025
Vue pour la dernière fois
il y a 8 heures