




Pièces
3 pièces
Surface
75 m²
Ascenseur
Oui
Parking
Oui
Terrasse
Oui
Consommation énergétique
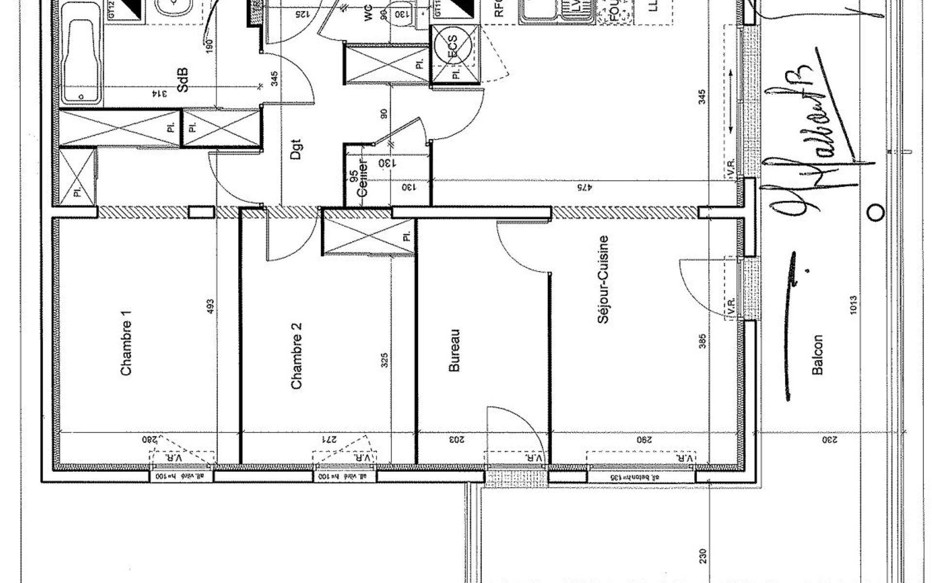
Appartement T3/4 75 m² avec terrasse, ascenseur et parking – Résidence 2010 – Perpignan Saint-Martin. Perpignan – Saint-Martin Dans une résidence calme avec ascenseur, construite en 2010, au 1er étage, découvrez cet appartement lumineux de 75,45 m². Il se compose d’un hall avec placard, d’un séjour ouvert sur une terrasse d’angle de 26 m², d’une cuisine semi-équipée, de deux chambres avec placards, d’un bureau, d’une salle de bains et de toilettes séparées. Deux places de stationnement privatives complètent ce bien. Quartier recherché, proche des commerces, écoles et axes routiers. Confort, fonctionnalité et cadre de vie agréable. Idéal pour résidence principale ou investissement.
Source
Orpi
Publié le
22 juillet 2025
Vue pour la dernière fois
il y a 1 jour