




Surface
300 m²
Jardin
Oui
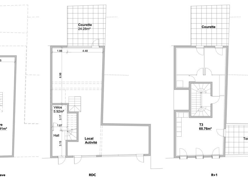
Projet de construction - Cours julien. Orpi à le plaisir de vous présenter en exclusivité un projet construction cours julien à Marseille. Un permis a été déposé et purgé de tout recours ( mairie + privé). Le projet porte sur la construction d'un immeuble en R+3 avec la création d'un local commercial. Un local commercial est attenant d'une surface de 20m2 actuellement loué. L'ensemble des pièces est à votre disposition sur simple contact au près de l'agence.
Source
Orpi
Publié le
20 janvier 2026
Vue pour la dernière fois
il y a 11 heures