
Pièces
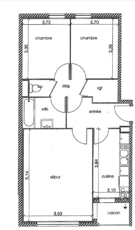
3 pièces
Chambres
2 chambres
Surface
61 m²
Balcon
Oui
Consommation énergétique
T3 situé au dernier étage, cuisine séparée, avec un mini dressing et petit balcon. Secteur calme, bien desservi en transports en commun (Bus 113, 124, Rer A Nogent-sur-Marne et Rer E Val-de-Fontenay). Chauffage individuel au gaz, eau froide comprise dans les charges avec régularisation annuelle (compteur individuel). Cuisine semi équipée avec lave-linge et lave-vaisselle. Garantie Visale acceptée. Disponible immédiatement.
Source
Pap
Publié le
6 août 2025
Vue pour la dernière fois
il y a 2 heures