




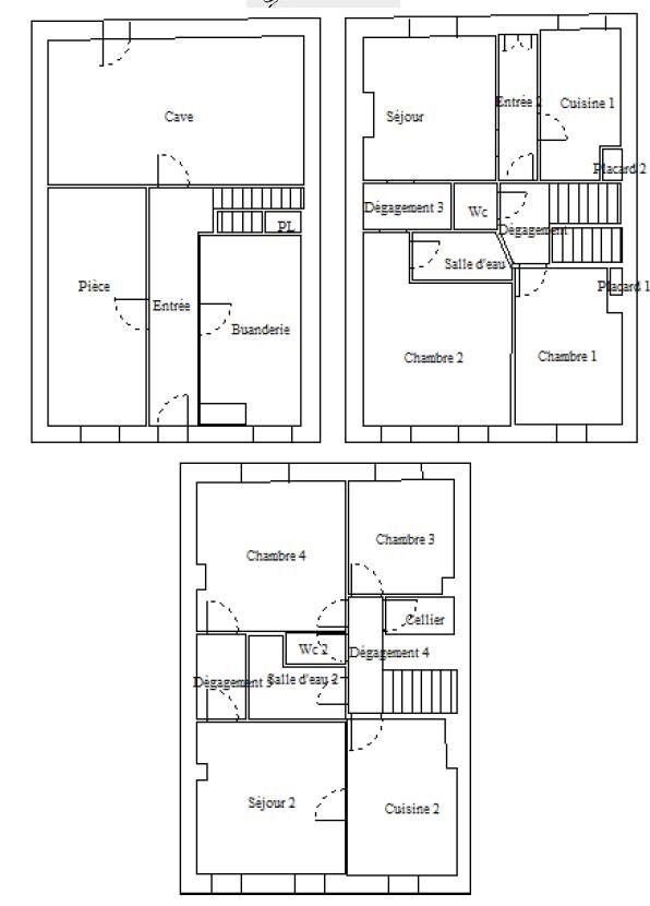
Pièces
8 pièces
Chambres
4 chambres
Salles de bain
2
Surface
155 m²
Jardin
Oui
Terrasse
Oui
Balcon
Oui
Cave
Oui
Consommation énergétique
Maison de village à Pierrefeu-du-Var - Investissement locatif ou résidence principale À vendre, en monopropriété, une maison de village typique située dans le charme authentique de Pierrefeu-du-Var. Ce bien se compose de deux appartements indépendants de type 3, offrant une belle opportunité d'investissement locatif ou de résidence principale avec revenu complémentaire. Atouts du bien : • Deux logements Type 3 distincts : un appartement déjà loué, l'autre libre à occuper ou à louer. • Deux entrées séparées pour une totale indépendance. • Espaces annexes : une cave, une buanderie et une pièce supplémentaire de 16 m², idéales pour du rangement ou un atelier. • Terrasse en rez-de-chaussée pour profiter de l'extérieur. • Emplacement : au coeur du village, proche des commodités et des paysages varois. • Le prix tiens compte des point suivants • La Toiture devra être contrôlée et éventuellement rénovée. Idéal pour un investisseur ou une famille souhaitant s'installer dans un cadre villageois tout en bénéficiant d'un revenu locatif. Visites et informations sur demande. Honoraires à la charge du vendeur Votre agent commercial 3G Immo sur place Ei - Luc Reynes inscrit au Rsac de Toulon n° 445 172 190 Selon l'article L.561.5 du Code Monétaire et Financier, pour l'organisation de la visite, la présentation d'une pièce d'identité vous sera demandée. Les informations sur les risques auxquels ce bien est exposé sont disponibles sur le site Géorisques : Numéro de mandat : 218180Lr Honoraires à la charge du Vendeur Bien En copropriété : Non Lieu : Var (83)
Source
Paruvendu
Publié le
25 février 2026
Vue pour la dernière fois
il y a 10 heures