




Pièces
2 pièces
Chambres
1 chambre
Surface
44 m²
Consommation énergétique
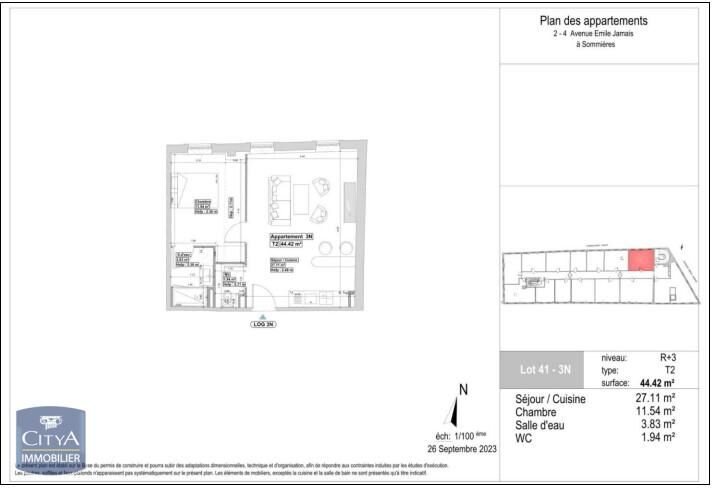
Exclusivite - Location - Sommieres - P2 Renove - Residence Calme - Citya Péri vous propose à la location cet appartement, situé au cœur de Sommières, dans un quartier calme et proche des commerces. Niché au sein d'une résidence rénovée avec goût, ce charmant T2 au 3ème et dernier étage saura vous séduire par son agencement fonctionnel et son atmosphère chaleureuse. Dès votre entrée, vous serez accueilli par un séjour lumineux agrémenté d'une cuisine équipée et de rangements astucieusement intégrés. La salle d'eau, moderne et pratique, ainsi que la chambre confortable, offrent tout le confort nécessaire pour une vie agréable au quotidien. Sommières, paisible et dynamique, est réputée pour ses grands marchés et son cadre de vie convivial. Dotée d'établissements scolaires, de collèges et d'un lycée, cette ville vous offre également toutes les commodités nécessaires à votre bien-être. N'hésitez pas à l'un de nos conseillers en location pour convenir d'une visite. Ce bien rénové et soigneusement entretenu vous promet un cadre de vie harmonieux et des instants de bonheur à partager. Le bien est soumis au statut de la copropriété. Loyer de 523,54 euros par mois charges comprises dont 50,00 euros par mois de provision pour charges (soumis à la régularisation annuelle). Soit avec Assurance Habitation et Assistance ( 21.00 euros ) : 544,54 euros. Les honoraires charge locataire sont de 481,36 euros ( soit 11,00 euros/m² ) dont 132,59 euros pour état des lieux ( soit 3,03 euros/m² ). Vous pouvez consulter les barèmes d'honoraires à l'adresse suivante : bareme-location Montant estimé des dépenses annuelles d'énergie pour un usage standard : entre 600 et 890 euros. Prix moyens des énergies indexés en 2021. Les informations sur les risques auxquels ce bien est exposé sont disponibles sur le site Géorisques : . Service facultatif. Contribution annuelle "attentats" non comprise. Voir conditions en agence. Lieu : Gard (30)
Source
Paruvendu
Publié le
2 mars 2026
Vue pour la dernière fois
il y a 9 heures