




Pièces
1 pièce
Surface
30 m²
Parking
Oui
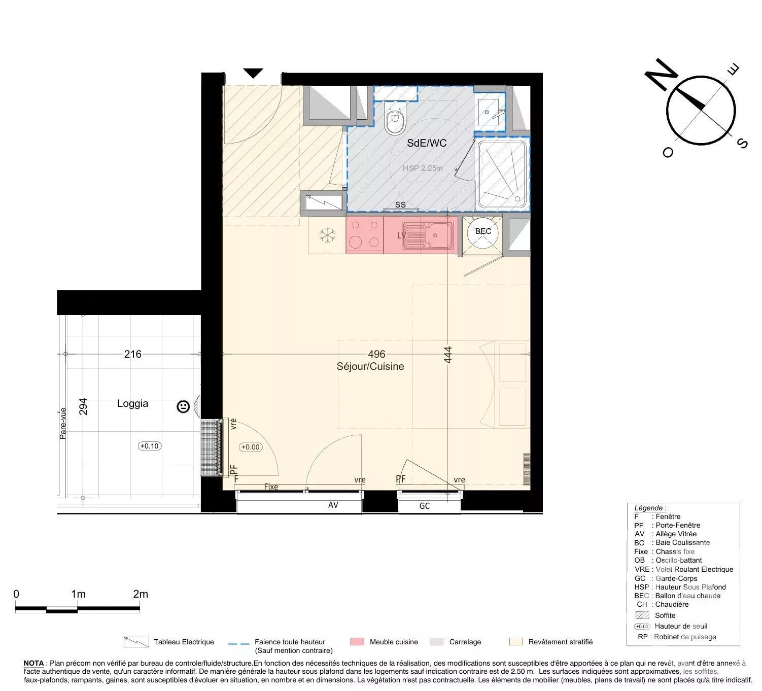
Nantes - Doulon Découvrez ce beau studio situé au 3ème étage (sur 4) avec ascenseur d'une résidence Rt2012 qui sera livrée fin 2026. Vous profiterez d'une belle pièce de vie avec très lumineuse (double orientation) de 25m² donne sur la loggia de 6m². Au sous-sol vous disposerez d'une place de stationnement privative. Belles prestations que ce soit au niveau de la propriété que de l'appartement. Vous profiterez pendant les beaux jours du jardin partagé de la résidence. A proximité de toutes les commodités (commerces, ligne de bus 10,11,12 , Tram ligne 1). Ecoles primaires et collèges à moins de 5 minutes à pied. Lycées publiques et privés accessibles en moins de 5 minutes en voiture. Idéal investisseurs ou primo-accédants. N'hésitez pas à nous pour plus d'informations. Prix : euros, Honoraires charge vendeur. Surface Loi Carrez : 30 Honoraires à la charge de l'Acquéreur : non Lieu : Loire-Atlantique (44)
Source
Paruvendu
Publié le
21 mars 2026
Vue pour la dernière fois
il y a 8 heures