




Surface
913 m²
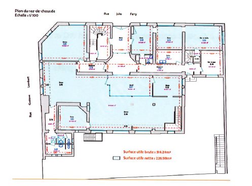
Fécamp 5 minutes centre ville Ce bâtiment, construit en 1904, à usage de bureaux est édifié en pierre de Caen dans sa partie soubassement et en briques pour les autres parties, le tout sous toiture réalisée en ardoises. Il comporte deux parties, un bâtiment principal, et sur le côté gauche, une adjonction dans le même style et doté d'une toiture-terrasse. L'accès au bâtiment se fait par un grand porche donnant sur un hall accessible via deux portes coulissantes par détection. Le bâtiment dispose d'un deuxième hall, disposant d'une porte de chaque côté : - la porte gauche donne accès à l'aile additionnelle - la porte de droite, permet d'accéder au premier étage. L'aile additionnelle est composée d'un séjour, d'une chambre, d'une salle de bain avec baignoire et d'un WC. En face deux autres portes coulissantes, conduisent au hall d'accueil. Un guichet d'accueil vitré sur support aluminium, carrelage au sol. Une porte aluminium vitrée de chaque côté. La porte de droite permet l'accès à un grand bureau. Au fond des toilettes homme et femme, et un bureau plus petit. Derrière le guichet, un bureau en longueur, et un autre bureau en retrait sans fenêtre. A droite du guichet, un autre bureau. Le sous-sol est accessible par un escalier à chaque extrémité de l'immeuble. Il est constitué de 9 pièces de stockage et d'une pièce dans laquelle est installée la cuve à fuel. A droite de l'escalier à l'extrémité gauche, la salle des coffres avec porte blindée épaisse et volant de fermeture, plafond voûté. Trois pièces en enfilade, avec porte blindée, la première sur carrelage, les deux autres sur béton brut. A gauche un cellier sous escalier, et dans la continuité deux pièces d'archives sur petit carrelage. Dans le prolongement un local de stockage. A gauche de ce local, un couloir qui dessert la salle des cuves à fioul, et la salle des chaudières avec cumulus eau chaude. A droite, un couloir avec trois pièces en briques et agglos sur sol ciment. Dans le deuxième hall à gauche, une porte avec couloir qui conduit à l'ancien logement du gardien qui comprend une cuisine aménagée, une salle de réunion sur parquet bois, cette dernière faisant office de réfectoire. Une porte en bois donne accès à une cour bétonnée entourée de murs de briques et silex, cour donnant sur la rue via un portail. L'accès au 1er étage se fait par un grand escalier situé à droite de l'entrée du bâtiment. En haut de cet escalier, se trouve une entrée. La première porte sur la droite ouvre sur un séjour la seconde porte donne accès à un salon. Dans le fond de celui-ci on accède à une cuisine puis une arrière 3/6 cuisine. A gauche de cette entrée, un couloir donne accès sur 4 chambres dont une très grande. Dans le fond, se situe une salle de bain avec baignoire, lavabo et WC. Au 2ème étage, le pallier donne accès à 4 petites chambres avec lavabos un Wc et deux greniers. Equipements : - chauffage gaz - fenêtres en bois simple vitrage ouvertures au rez-de-chaussée dotées de grilles extérieures de protection. ¤ Superficie : Immeuble construit sur la parcelle cadastrée section Bp n°558 d'une contenance de 602 m². L'ensemble correspond à une surface utile de 913 m². Visite sur rendez vous Honoraires inclus de 4% Ttc à la charge de l'acquéreur. Prix hors honoraires 550 000 . Dpe vierge. Les informations sur les risques auxquels ce bien ...
Source
Paruvendu
Publié le
31 janvier 2026
Vue pour la dernière fois
il y a 2 heures