




Pièces
4 pièces
Chambres
3 chambres
Surface
140 m²
Parking
Oui
Jardin
Oui
Piscine
Oui
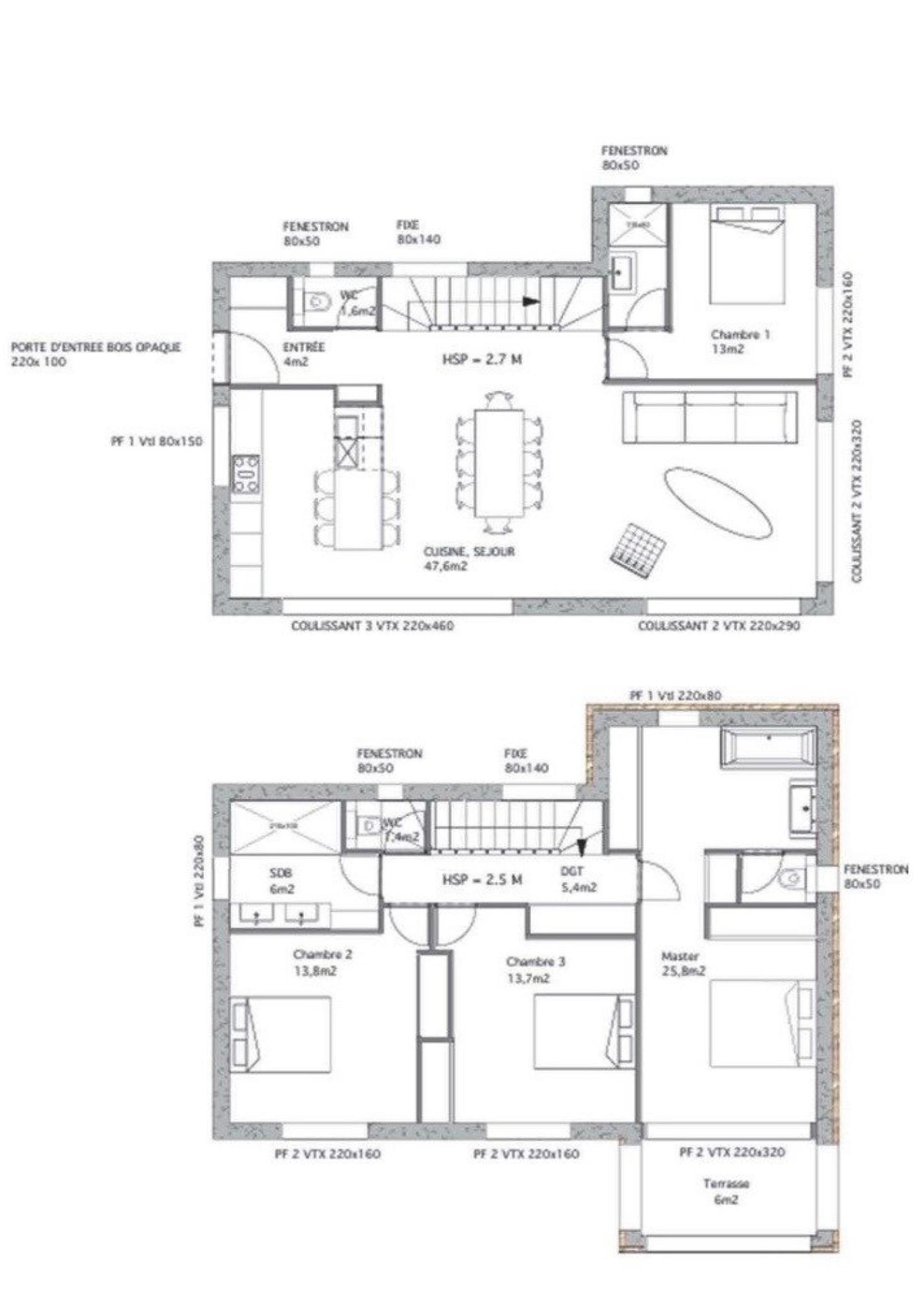
Villa 4 pièces 140 m² Dans le quartier Résidentiel de Montolivet, dans une petit rue très calme , venez découvrir ce projet de Villa de 140 m² sur un terrain de 431 m². Cette villa d'architecte, qui sera livrée le vers le dernier trimestre 2026, saura vous séduire par la qualité de ses matériaux et une finition de standing. Vous rentrerez , au rez de chaussée, dans la grande pièce de vie de prés de 50 m² avec cuisine ouverte. Une première chambre et un Wc se trouvent également à ce niveau.. L'étage est composé de 3 belles chambres, dont une suite parentale avec salle de bain privative. Une autre salle de bain est également proposé à cet étage. Coté extérieur, une belle piscine(6X2,5) vous permettra de vous rafraichir . La maison est climatisée et une place de parking est assurée dans le terrain. Possibilité d'acheter le terrain seul (libre choix du constructeur) à 349 000 euros. Bien rare à la vente dans un quartier très recherché. Les informations sur les risques auxquels ce bien est exposé sont disponibles sur le site Géorisques : Prix de vente : 599 000 € Honoraires charge vendeur Contactez votre conseiller Safti : Gérard Tchoghandjian, Tél. : [Coordonnées masquées], E-mail : [Coordonnées masquées] - Ei - Agent commercial immatriculé au Rsac de Marseille sous le numéro 823 622 766 Surface : 140 m² Non soumis au Dpe Consommation énergie primaire : Ns kWh/m²/an Consommation énergie finale : Non communiqué
Source
Safti
Publié le
1 octobre 2025
Vue pour la dernière fois
il y a 22 heures