




Pièces
3 pièces
Chambres
2 chambres
Salles de bain
1
Surface
71 m²
Consommation énergétique
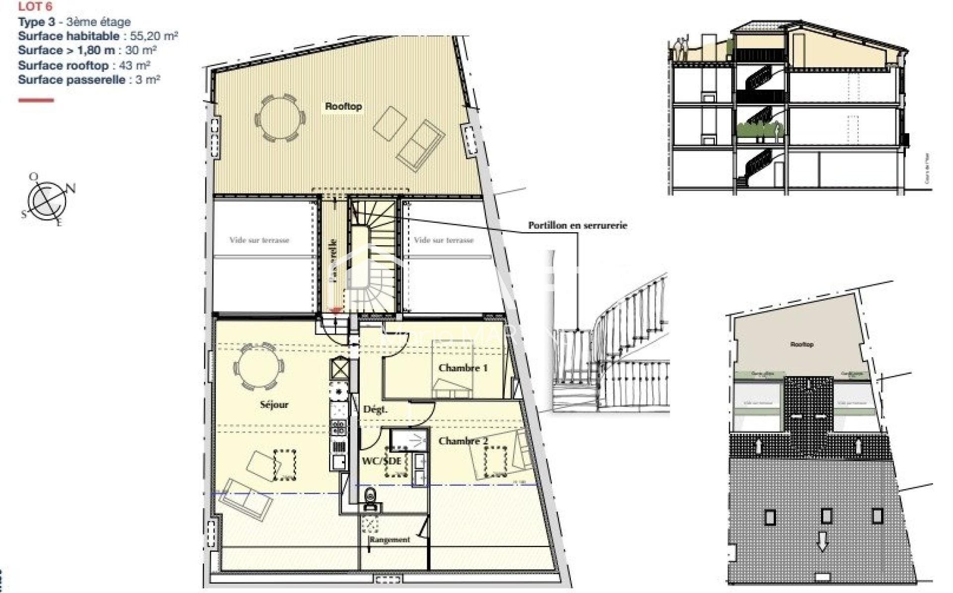
Connu de tous les Bordelais pour son marché et sa brocante professionnelle, le quartier des Capucins/Saint-Michel est aussi connu pour son bel équilibre entre lieux de vie et zones résidentielles. Animé toute la journée, il retrouve le soir une vraie vie de quartier, accueillante et conviviale. Niché au 3ème et dernier étage d'une copropriété de 6 lots, ce superbe appartement de type 3 de 55,2m2 carrez et 30m2 de surface inférieure à 1m80 et extérieur sera vous séduire avec son rooftop privé de plus de 40m2. Il se compose d'un dégagement distribuant 2 chambres, une salle d'eau, une cuisine ouverte sur le salon/séjour et l'accès à la terrasse sans vis à vis. Véritable trésor ! Le bien comprend 1 lot, et il est situé dans une copropriété de 6 lots (il n'y a pas de charges courantes liées à la copropriété et le syndicat des copropriétaires ne fait pas l'objet d'une procédure citée à l'article L. 721-1 du code de la construction et de l'habitation). Les informations sur les risques auxquels ce bien est exposé sont disponibles sur le site Géorisques : Prix de vente : 510 000 € Honoraires charge vendeur Contactez votre conseiller Safti : Maria Martins, Tél. : , E-mail : - Ei - Agent commercial immatriculé au Rsac de Bordeaux sous le numéro 809 004 138
Source
Safti
Publié le
2 octobre 2025
Vue pour la dernière fois
il y a 10 heures