




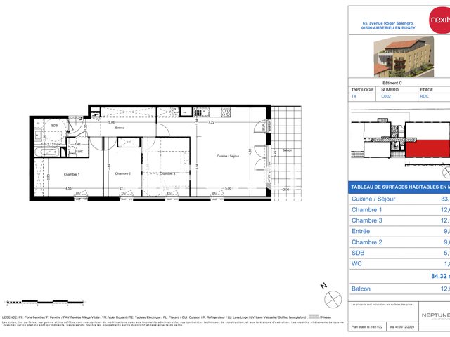
Pièces
4 pièces
Surface
84 m²
Parking
Oui
Terrasse
Oui
Balcon
Oui
Consommation énergétique
Pas De Frais D?Agence Ambérieu en Bugey, dans une belle résidence neuve au cœur de la commune et à proximité immédiate des commerces et des accès à la gare Sncf. Venez découvrir ce charmant 4 pièces rez de chaussée avec terrasse! Il est composé d?une entrée avec un placard, une vaste et lumineuse pièce de vie avec une cuisine aménagée et équipée donnant accès au balcon. Trois chambres en parquet, ainsi qu?une salle de bain et un Wc indépendant. Une place de parking compris avec le logement. Chauffage et production d?eau chaude individuels au gaz, eau froide individuelle, entretien de la chaudière compris dans les charges. Disponible début Mars 2026 ? Logement soumis à conditions. Veuillez nous pour plus de renseignements.
Source
Seloger
Publié le
28 janvier 2026
Vue pour la dernière fois
il y a 6 heures