



Pièces
1 pièce
Surface
27 m²
Ascenseur
Oui
Parking
Oui
Balcon
Oui
Consommation énergétique
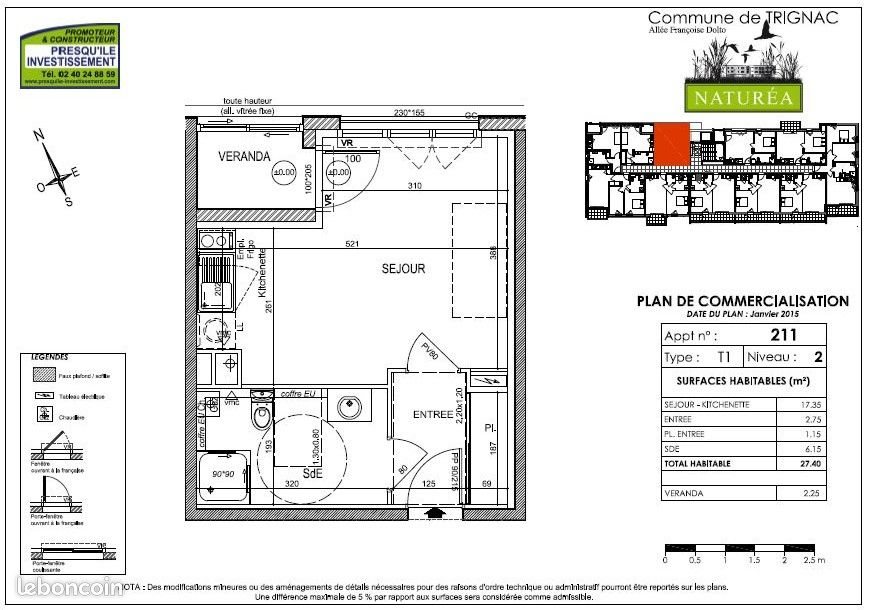
Appartement T1 A Trignac, dans le quartier de la Savine, Dans la résidence Naturea , nous vous proposons un appartement de type T1 n°211 de 27.40m², situé au 2ème étage, il comprend : une entrée avec placard, une salle d'eau avec Wc, un séjour avec coin cuisine, une véranda de 2.25m² accessible depuis le séjour. Au sous-sol un garage n°18. Eau chaude et chauffage individuel électrique. Disponible au . Eau froide, entretien parties communes, entretien ascenseur et espaces verts communs, compris dans les provisions sur charges mensuelles et donnant lieu à une régularisation annuelle. Les honoraires de location Ttc (à la charge du locataire) incluent le montant des honoraires de rédaction des états des lieux facturés pour 82 euros Ttc, après réalisation lors de l'entrée dans les lieux. Pour plus d'informations sur ce logement, veuillez vous rendre sur notre site internet Afedim. Les informations sur les risques auxquels ce bien est exposé sont disponibles sur le site Géorisques : Référence annonce : Date de réalisation du diagnostic : Honoraires à la charge du locataire : 356 € Ttc Dépôt de garantie : 335 € Montant des charges : 33 € / mois Montant estimé des dépenses annuelles d'énergie pour un usage standard : entre 440 € et 640 € sur les années 2021, 2022 et 2023 (abonnements compris).
Source
Seloger
Publié le
28 novembre 2025
Vue pour la dernière fois
il y a 3 heures