




Pièces
3 pièces
Chambres
2 chambres
Surface
63 m²
Ascenseur
Oui
Parking
Oui
Balcon
Oui
Cave
Oui
Consommation énergétique
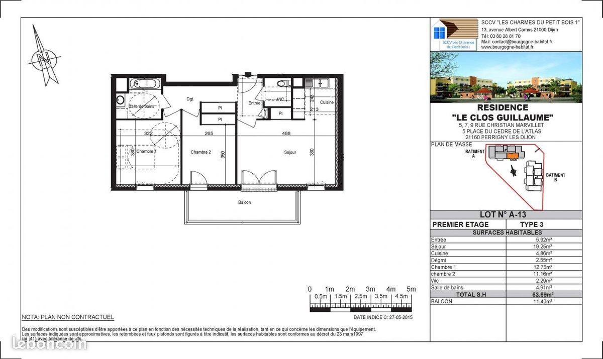
Appartement T3 A Perrigny les Dijon, dans la résidence neuve Le Clos Guillaume, T3 de 63.69m² n°A13 (lot 79) situé au 1er étage du bâtiment A. Il se compose d'une entrée avec placard, d'une pièce de vie de 24m² avec coin cuisine aménagée de placards haut et bas et equipée d'une plaques de cuisson , un four et une hotte ouverte sur balcon de 11.40m², d'un dégagement avec placard, de deux chambres (dont une avec placard), d'une salle de bains et de wc séparés. Au sous-sol, un garage n°21 (lot 17) une cave n°10 (lot 51). Tout collectif gaz. Pinel (B1). Entretien parties communes, entretien ascenseur et espaces verts communs, compris dans les provisions sur charges mensuelles et donnant lieu à une régularisation annuelle. Les honoraires de location Ttc (à la charge du locataire) incluent le montant de rédaction des états des lieux facturé pour 191,00 euros Ttc, après réalisation lors de l'entrée dans les lieux. Disponibilité le . Les informations sur les risques auxquels ce bien est exposé sont disponibles sur le site Géorisques : Référence annonce : Date de réalisation du diagnostic : Honoraires à la charge du locataire : 700 € Ttc Dépôt de garantie : 690 € Montant des charges : 139 € / mois Montant estimé des dépenses annuelles d'énergie pour un usage standard : entre 400 € et 580 € sur les années 2021, 2022 et 2023 (abonnements compris).
Source
Seloger
Publié le
16 novembre 2025
Vue pour la dernière fois
à l'instant